• PROJEKTE
  • LEISTUNGEN
  • ZHAC
  • KONTAKT
  • FOLGEN
  • Houzz
  • Homify
  • Facebook
  • Instagram
☰
  • PROJEKTE
  • LEISTUNGEN
  • ZHAC
  • KONTAKT
  • FOLGEN
  • Houzz
  • Homify
  • Facebook
  • Instagram

Loading project

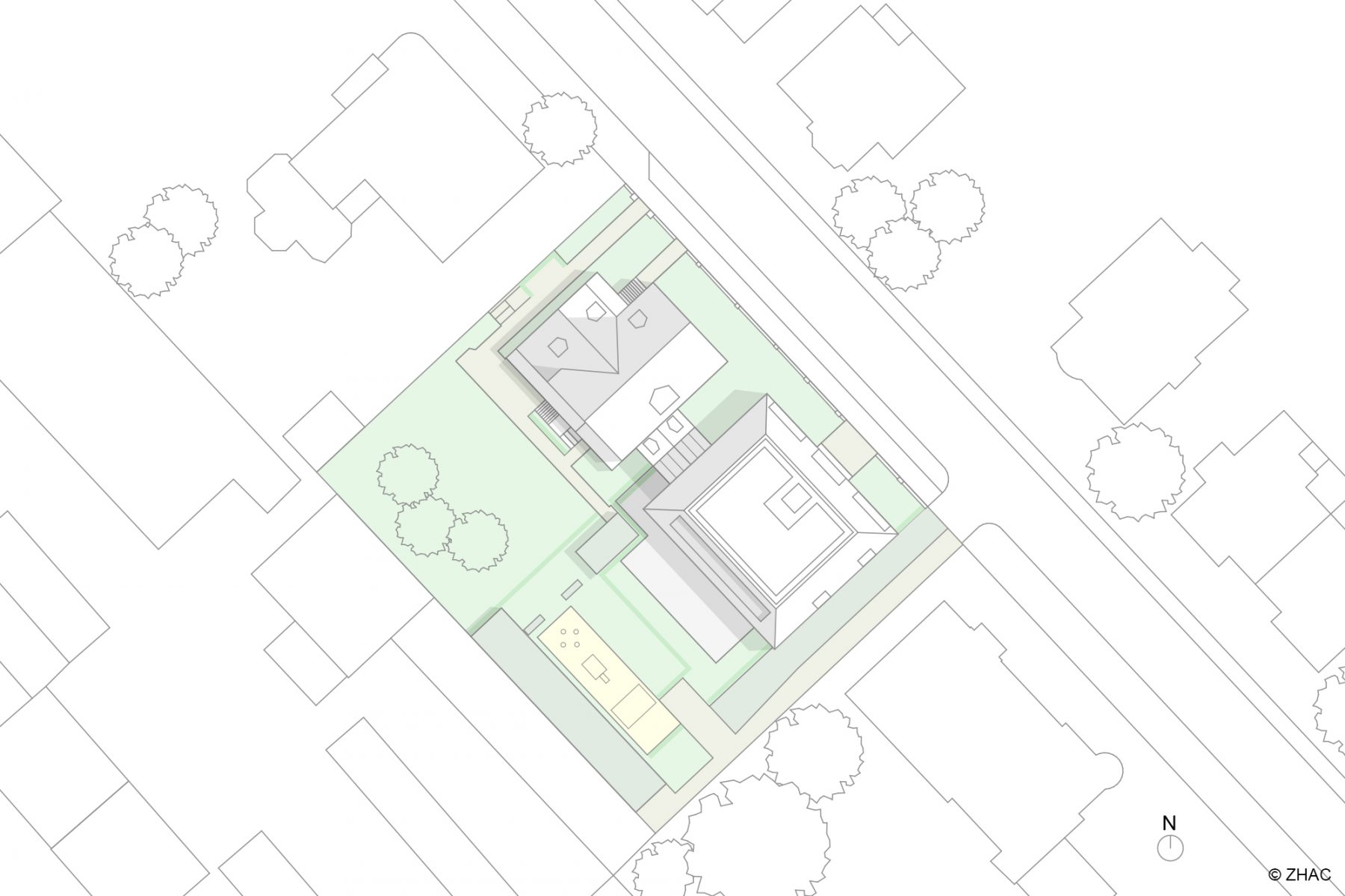
Jugendstilvilla-Ensemble Velbert

Das Anfang 1900 in Velbert erbaute, ursprünglich als Doppelvilla geplante repräsentative Jugenstilhaus, erfährt eine denkmalgerechte Sanierung und wird 120 Jahre später mit dem behutsam über eine gläserne Fuge abgesetzten Neubau in Holz-Hybridbauweise zu einem klimaneutralen Wohnensemble.

  • Jugendstilvilla-Ensemble Velbert
  • INFO
Please rotate your device to view this website.